Projekte
Wettbewerbe
Wohnbau
Gewerbe
Häuser
Werkliste
Kontakt
Impressum
Datenschutz
Büro
Jobs
Presse
← zurück
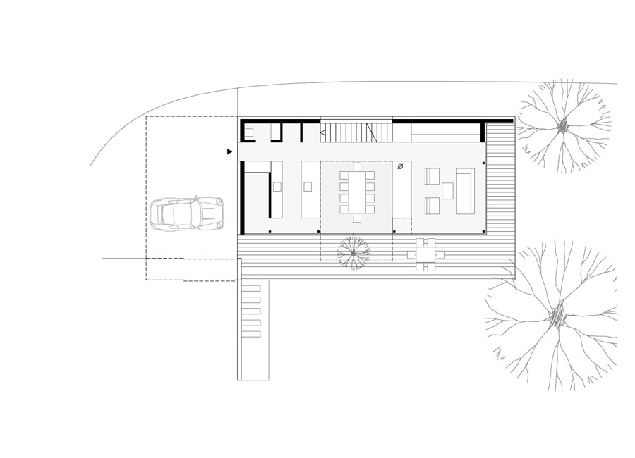
Einfamilienhaus S.
CLOSE
Einfamilienhaus S.
Planung | Umsetzung
2013 - 2013
Bauort
Birgitz
↑ nach oben
Projekte
Wettbewerbe
Wohnbauten
Gewerbebauten
Einfamilienhäuser
Werkliste
Kontakt
Impressum
Datenschutz
Büro
Jobs
Presse